携手康盛打造温馨小窝,从此不别康桥
:2013-03-18 00:00:00 字号:小中大
【小区】:康桥花园
【户型】:三室两厅两卫
【面积】:143㎡(实测109的说,这个公摊有点坑爹)
【装修公司】:康盛装饰
【设计师】:刘炽
【风格】:简欧
【半包价】:小8W
【施工】: 祝东升经理
【时间】:2013年3月5日开工
【预算】:20w
【进度】:开槽ING
作者:ghx8039 网站:房产超市网
链接地址:http://bbs.jx.fccs.com/read-htm-tid-938485-ffid-416-page-1.html
--------------------------------------------------------------------------------------
3.14日更新
孩子要读书,住房要改善,漫漫两年看房路,阴差阳错买在康桥花园的有木有!各种喜弄哀乐都已过眼烟云,年前奔波于N个装修公司,在王掌柜的英明建议下选择了康盛装饰,于是乎量房,沟通,定金,,,于是乎催工,于是乎出效果图,于是乎婆婆帮看日子---惊蛰是良晨吉日的说。。。。吼吼,于是乎开工啊有木有?小激动啊有木有,偶相当滴期待ING!接下来的几个月大把毛爷爷要飞了有木有,人要瘦一圈啦有木有,接下来家庭要有战争来了有木有,心情忐忑没底的有木有?苍天啊,大地啊,康盛啊,千万不要我失望哦,期待ING
LZ一懒人,但对装修一点不敢怠慢,白天跑工地,回家看图纸,吼吼,周末看材料,日记吗能写多少先放点水进去,照片一定补上!在此谢谢王掌柜,还有小冯姑娘的热心帮助!
【户主】:芊芊玉枝(芊芊)
【小区】:康桥花园
【户型】:三室两厅两卫
【面积】:143㎡(实测109的说,这个公摊有点坑爹)
【装修公司】:康盛装饰
【设计师】:刘炽
【风格】:简欧
【半包价】:小8W
【施工】: 祝东升经理
【时间】:2013年3月5日开工
【预算】:20w
【进度】:开槽ING
【已购主材】:厨柜,瓷砖,
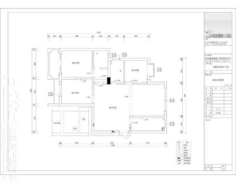
原始结构图先上
话说这个户型芊芊压根不喜欢,为了北师大的一个名额,姐忍啦
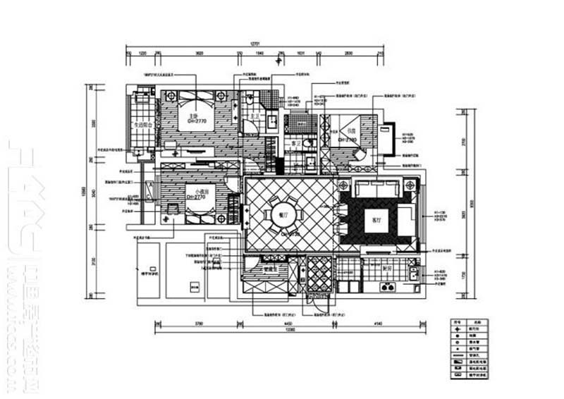
改后结构图, 和刘工沟通很多次,对刘工的耐心热心赞一下,在此表示感谢!
效果图奉上,话说芊芊姐姐一家对效果图还是相当满意地
芊芊喜欢的风格也是女儿喜欢的风格,说好好高贵,好喜欢!但愿做出来有如此的效果
-----------------------------------------------------------------------------------------------------
日记正式开始,吼吼验房篇,2012.12.28零度以下,拿钥匙,验房,王掌柜和小冯美女不辞辛劳,不畏严寒,免费帮验房,芊芊姐姐那是灰常感动!有图有真相,小冯菇凉,借用一下哈


人无完人,房子也是的,既然是造出来的,小问题还是有的,空鼓,滑道,门锁等等,不过物业都给解决喽,哦也。
话说当天验房,正值中午,零下的温度,楼主心里过意不去,想请王掌柜还有小冯菇凉吃个便饭,被婉言拒绝,说同小区还有业主在等着 ,于是乎老公嘀咕,王掌柜一个月赚多少大洋,这么敬业 ,午饭都顾不上吃。我说:这个吗要问王掌柜自己
选装修公司篇,LZ当时网上3家免费量房设计,还有一个是群里潜水过来量房的。一共接触四个设计师,每个都很热心,用心的设计,提出不同方案,综合比较最后选择康盛装饰,选择刘工的方案,原汁原味的独特的方案!没有太多的理由,选择设计也是一种缘分,楼主相信自己的感觉!在此谢谢其他三家设计师的热忱和付出!芊芊只有一套房子,没办法兼顾到每个设计师的付出。只能说谢谢各位!
开工啦,3月5日,惊蛰,万物复苏,春暖花开!婆婆说是个好日子,个么好吧,就是她啦!说好9点开工,芊芊和老公准时赶到,康盛的祝经理一行已经在门口啦,激动的时刻到啦,开心ING。预知后事如何,请看楼主照片!
哇,好大的一个“发”啊

夜深人静,继续补交作业,开工海图来咯!
兵分三路,画出要敲掉的墙体,



-----------------------------------------------------------------------------------------------
3.17日更新
当,当,当!周末图片大集锦来咯,这个都是芊芊手机里的,估计没上面老公手机拍的效果好,而且乱七八糟的!亲们少安毋躁,欢迎拍砖哈
话说为了通透美观,这块将来是玻璃墙,特意让师傅砌的10公分挡水梁,哒哒哒


这货挺酷的!派啥子用场的啊你这是?

开槽第一刀,芊芊姐姐抓拍到啦
这个很认真,姐姐很感动
师傅的手艺亮相咯


据王掌柜说这个槽开地是相当地有感脚!
物业派来的师傅,这时来修空鼓,刚好撞到姐姐镜头上。

17705733608
在线预约
:康盛装饰


